山を望む 家族が集う家

2023年

Kさん親世帯 夫婦60代+1人

Kさんご一家の旧居は藻岩山を望む住宅街に立つ築50年以上の一軒家。下宿営業をしていたこともある大きな二世帯住宅は、家族3人で暮らすには持て余すほどの広さと部屋数がありました。家の老朽化と共に暮らしづらさが募る日々の中、Kさんご夫妻は建て替えを決意。ミライエホームの設計・施工で新築することになりました。

Kさんご夫妻が新居で最も重視したのが「家族が集う家」にすること。子どもたちや孫が一堂に介するKさん宅にとって、大人数が伸びやかに過ごす空間は欠くことのできない要素です。

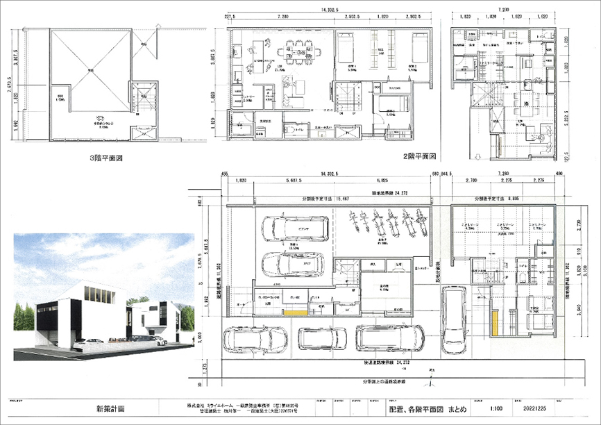
また、築50年越えの旧居には、歴史の分だけ思い出の品があふれていて、それらの収納場所も必須。さらに車2台やバイクのための大きなガレージも必要で、家族が集う広さと収納の両立がプランの要となりました。

完成した新居は1階に大きなガレージを持つ3階建て。2階は家族が集うLDKに大きくボリュームを割き、窓の向こうには藻岩山が映えています。寝室や水まわりも2階に集約しているので、ワンフロアで生活を完結する平屋的な暮らしを実現しました。

3階は子どもたちが宿泊できる個室や大量の書籍を収納する書棚、大容量のウォークインクローゼットなど収納に特化。上下階の行き来は階段の他にホームエレベーターも設置し、歳を重ねても快適に暮らせる住まいとなりました。

なじみのある山のある景色の中で始まった新たな暮らし。「何もかもが快適で、今までの暮らしがうそみたい。週末になると家族が勢ぞろいするにぎやかさは相変わらずですけどね」と笑顔で話す奥さんです。

造作のテーブルが置かれた高天井の広いダイニング。スリットの壁の先にはPC作業ができるようワークスペースを設置
南側の大きな窓から光を取り込む開放的なリビング
全面収納が充実しているキッチンは、背面収納にこだわりの食器類が並ぶ。ハイサイドライトからの明るい光と、藻岩山を望む窓が開放的なキッチンを演出している
家族が並んで食事の支度ができる広いキッチン
仕切りのない2階は階段ホールから、LDK、水まわりと回遊できる
孫たちの格好の遊び場にもなっている2階和室
夫婦それぞれの趣味部屋、書棚やウォークインクローゼットで構成されている
3階ホールから望む藻岩山。「長くこの場所で暮らしていましたが、この高さから見る抜けのある景色は初めてでした」とKさん

FROM DESIGNER設計者より

この計画は、敷地を親世帯・子世帯に分割し、それぞれ独立した1棟の計2棟を建築するという難しいものでした。親世帯のKさん宅には、何かにつけて親戚・家族が集まるということで、自家用車2台と複数台あるバイク用車庫のほか、2~3台の来客用駐車スペース、さらに子世帯側にも最低自家用車1台分の屋根のあるカーポートが必要で、このレイアウトも更に難易度を上げた要因でした。

最初のヒアリングの後の初回プランで、要件をほぼ満足させ、かつ双方2階建てで納めており、我ながらほれぼれする程の完成度でした(笑)。

しかしながら、解体前の旧居は非常に大きく、50年分のさまざまなモノの収納場所も必要。それ以上の広さが必要と3階建てに変っていきましたが、「藻岩山を望む家族の集う家」というコンセプトは一貫しており、良い家が出来たと思います。ありがとうございました。

1階ホールを介して奥へと進むと、バイクが並ぶガレージに続く。Kさんご一家のガレージは、バイク、自転車、車と3つのゾーンに分かれている
広い玄関ホール。正面の扉の先は広いガレージにつながっている
花々が出迎えてくれる玄関アプローチ
大きな道路に面したKさんご一家の新居。旧居は道路前が駐車スペースになっていた。「以前の家と同じくスムーズに車の出し入れができています」とKさん。以前の暮らしの便利さを引き継ぎつつ、屋根付きガレージでより快適にしている
敷地内に新築した二棟が並ぶ

一覧画面に戻る